Bilocale in vendita

Palermo, Piazza Piazza pt.1 - Partanna
€ 115.000
2 locali 2 locali
85 Mq 85 Mq
2 bagni 2 bagni

Bilocale in vendita

Palermo, Piazza Piazza pt.1 - Partanna

Descrizione annuncio

Via PT 1, 3 / Via apollo 53

Bilocale in residence

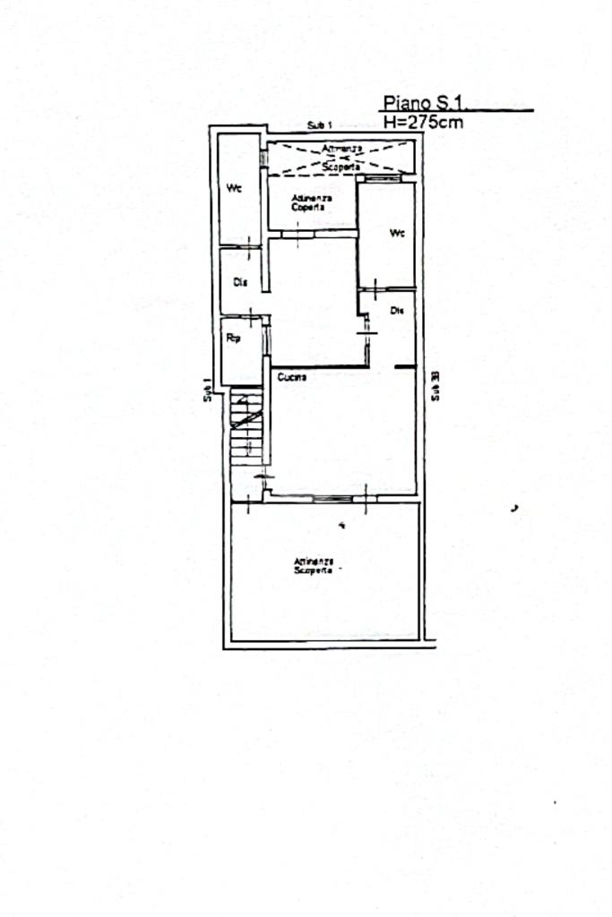
Nel cuore della località di Partanna, nel comune di Palermo, si propone in vendita un appartamento di 77 mq, situato al piano seminterrato di un edificio costruito nel 1990. L'immobile, di categoria civile, offre una disposizione funzionale con due locali ben distribuiti. La zona giorno si apre su un ampio terrazzo, ideale per momenti di relax all'aperto. La camera da letto è spaziosa e luminosa con annesso un secondo terrazzo , mentre i due bagni garantiscono comfort e praticità. Un ulteriore vantaggio è rappresentato dal posto auto riservato, una comodità non trascurabile in una zona ben servita ,strategicamente posizionata ma con difficoltà di parcheggio. La vicinanza ai principali servizi e alle vie di comunicazione rende questa soluzione abitativa particolarmente interessante per chi cerca un ambiente tranquillo senza rinunciare alla comodità della città.

Per maggiori informazioni contattare i numeri 091 7285522 e 375 7233430

Se vuoi essere informato per altre proposte, seguici sui nostri canali social

Mostra tutto

Nelle vicinanze

Trasporto pubblico Trasporto pubblico
Iandolino - Catalano
Iandolino - Catalano
40 m
Cavarretta - Castelforte
Cavarretta - Castelforte
160 m
Palermo Tommaso Natale
Palermo Tommaso Natale
2,4 Km
Palermo Cardillo
Palermo Cardillo
3,0 Km
Scuole Scuole
Scuola Elementare Giovanni Pascoli
250 m
Istituto comprensivo Loeonardo Sascia
2,0 Km
Scuola Giovanni Falcone
2,2 Km
Farmacia Farmacia
Farmacia
170 m
Rizzo
1,6 Km
Supermercati Supermercati
Arancio supermarket
1,4 Km
Lidl
1,5 Km
Eurospin
1,5 Km
Carrefour
1,5 Km
Conca Doro c.commerciale
1,7 Km
Negozi Negozi
Negozi
1,6 Km
Bar Bar
Bar Galatea
430 m
Antico chiosco
1,6 Km
Danimart
1,6 Km
Bonida
1,6 Km
Scalea Club
2,3 Km
Ristoranti Ristoranti
La Cantinetta
170 m
Ristoranti
280 m
Badalamenti Cucina E Bottega
430 m
Le Antiche Mura
650 m
Centro Ippico Chirone
720 m
Mostra tutto

Caratteristiche

Rif.:
61212493
Piano:
-1 di 2 (Piano seminterrato)
Box:
1
Posti auto:
1
Terrazzi:
2
Camere da letto:
1
Mostra tutto
Prezzo Prezzo
€ 115.000
Rata mutuo Rata mutuo
€ 545 / mese
Spese annue Spese annue
€ 500
Proponi il tuo prezzoProponi il tuo prezzo
Immobile valutato con T·Valuta

Classe Energetica

G
G
G
G
G
G
G
G
G
EP invernale del fabbricato:
EP estiva del fabbricato:
Anno di costruzione:
1990
Riscaldamento:
Assente

Ti interessa visionare l'immobile?

Fissa un appuntamento  Fissa un appuntamento

Richiedi informazioni

Clicca su Leggi per aprire l'informativa
* Questi campi sono obbligatori

Calcola il tuo mutuo

Semplice e senza impegno
Anticipo

( % )
Mutuo

( % )

pochi semplici passi

inserisci i tuoi dati
Questionario completato
Grazie per aver richiesto un appuntamento senza impegno con un nostro Consulente del Credito e Assicurativo.

Hai inserito correttamente tutti i dati necessari e a breve riceverai una e-mail con un link da convalidare per inviare i tuoi dati.
Affiliato
Palermo Mondello Sas
Via Lorenzo Iandolino, 55 90134 Palermo (PA)

Il nostro staff


  • Riccardo Di Battista
    Responsabile

  • Pietro Formisano
    Affiliato
Via Lorenzo Iandolino, 55 90134 Palermo (PA)
Zona: Mondello-Valdesi-Partanna
Mostra su mappa
Orari: lunedì - venerdì 09.00 - 13.00 / 16.00 - 19.30 - Sabato 09.00 - 13.00
Affiliato
Palermo Mondello Sas
Via Lorenzo Iandolino, 55 90134 Palermo (PA)

2026 Tecnocasa Franchising S.p.A. - P. IVA 08365160152 - Via Monte Bianco 60/A 20089 Rozzano (MI). Ogni agenzia ha un proprio titolare ed è autonoma. Privacy policy | Policy utilizzo | Cookie policy